物件番号152

物件概要
【物件種別】:民間賃貸住宅
【賃貸・販売】:賃貸
【所在地】:妹背牛町1区みどり町内
【契約状況】:空室状況は管理会社へ直接お問い合わせください
アパート名
ジャルダン妹背牛G棟
交通
妹背牛駅:約1.1キロメートル
妹背牛温泉ペペル:約0.4キロメートル
役場:約0.5キロメートル
小学校/中学校
保育所:約1.1キロメートル
小学校:約0.8キロメートル
中学校:約0.4キロメートル
賃貸料
家賃:1LDK 44,000円~ 2LDK 55,000円~
共益費:3,000円 駐車場:1台2,000円
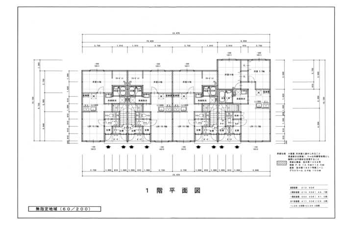
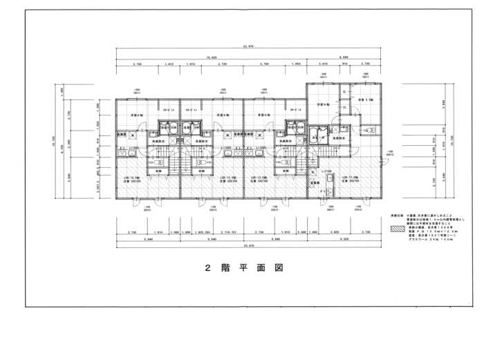
建物の概要
-
築年月:令和7年3月
-
1LDK 6戸 2LDK 2戸
-
設備:インターネット無料、共有WiFiなど
特記事項
上記内容は変更となっている場合があります。詳細情報や空き室情報等については、直接管理業者へお問い合わせ願います。
管理会社
〒070-0030
旭川市宮下通7丁目3897番地1 駅前ビル2F
株式会社 生活プロデュースリーシング
お問い合わせ先
移住情報
