物件番号147

物件概要
【物件種別】:住宅および宅地
【賃貸・販売】:賃貸
【所在地】:妹背牛町字妹背牛363番地9(1区19町内)
【契約状況】:
交通
妹背牛駅(約1.0キロメートル)、温泉(約0.9キロメートル)、役場(1.0キロメートル)
小学校/中学校
保育所(約1.1キロメートル)、小学校(約0.3キロメートル)、中学校(約0.9キロメートル)
賃貸価格
月額38,000円
建物の概要
構造/木造/2階建て
延べ床面積:103.68平方メートル(約31坪)
築年月:昭和50年
設備:上下水道・水洗トイレ・風呂
土地の概要
面積:330.34平方メートル(約100坪)
特記事項
保証会社加入必須

1階 間取り

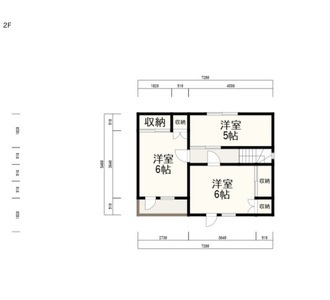
2階 間取り

居間

台所

風呂

トイレ

和室

洋室1

洋室2
お問い合わせ先
妹背牛町役場 企画振興課企画振興グループ
電話 0164-34-8581 FAX 0164-32-2290
移住情報